Piscinola - Via Vittorio Veneto

Napoli - zona Piscinola

Rif: IMMO-123902521
Condividi Linkedin Whatsapp Stampa
€ 139.000
Appartamento
150 Mq
5 Vani
Classe energetica G
3 Camere
2 Bagni
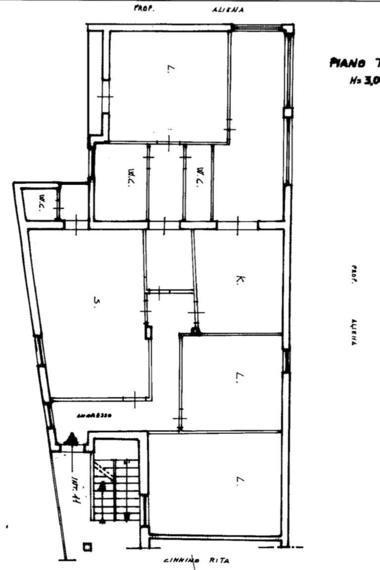
Lo Studio Immobiliare Musella propone in vendita ampio e luminoso appartamento di 5 vani ed accessori così composto: ingresso-corridoio, salone doppio, tre camere, cucina, sala da pranzo, 2 bagni e ripostiglio. L'appartamento ha una triplice esposizione, risulta molto luminoso e soleggiato. Attualmente è locato con regolare contratto di locazione registrato presso l'agenzia delle entrate. Visionabile ogni giorno previo appuntamento telefonico.

Dettaglio immobile

Contratto Vendita
Rif IMMO-123902521
Prezzo € 139.000
Provincia Napoli
Comune Napoli
Zona Piscinola
Indirizzo Via Vittorio Veneto 129
Superficie 150 mq
Vani 5
Camere 3
Bagni 2
Classe energetica G (DL 192/2005)
EPI 175 kwh/m2 anno
Piano 3 / 3
Riscaldamento inesistente
Condizioni abitabile
Spese condominiali € 10
Anno di costruzione 1950
Ascensore no
Cucina abitabile
Balcone si

Consistenze

Descrizione Superficie Sup. comm.
Principali
Immobile - 3° piano 150 Mq 150 Mqc
Totale 150 Mqc

Planimetrie

Richiedi maggiori informazioni

Autorizzazione al trattamento dei dati personali+
Dichiaro di aver letto l'informativa sulla privacy ed accetto le condizioni d'utilizzo del servizio.
Riempi il campo con il codice riportato nell'immagine*
Codice Captcha
Chiamaci Contattaci